hala č. 31.02 foto a..

Fotografie 1/5 hala č. 31.02 foto a..

hala č. 31.02 foto b..

Fotografie 2/5 hala č. 31.02 foto b..

dron hala 31.02

Fotografie 3/5 dron hala 31.02

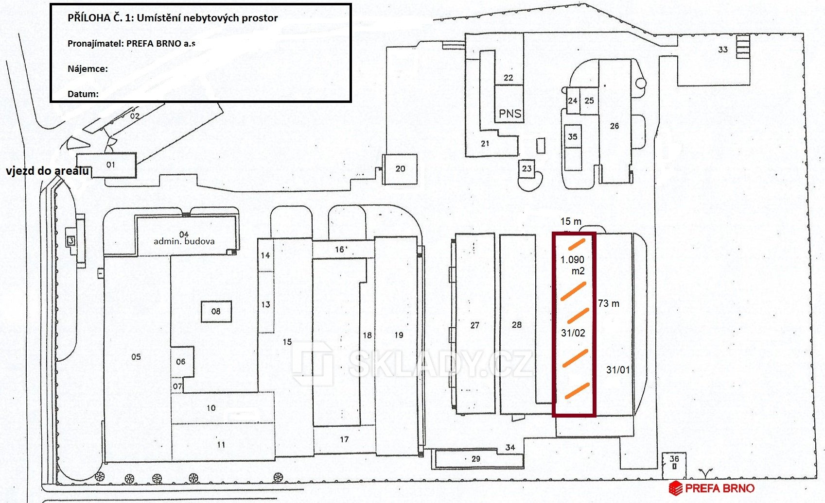
situačka hala č. 31.02

Fotografie 4/5 situačka hala č. 31.02

LA dron půdorys hala č. 5

Fotografie 5/5 LA dron půdorys hala č. 5

hala č. 31.02 foto a..

hala č. 31.02 foto a..

hala č. 31.02 foto b..

hala č. 31.02 foto b..

dron hala 31.02

dron hala 31.02

situačka hala č. 31.02

situačka hala č. 31.02

LA dron půdorys hala č. 5

LA dron půdorys hala č. 5

Poslat dotaz
TOPlist